direct naar inhoud van Ruimtelijke onderbouwing
Plan: Perceelsplitsing Heuvel 20 te Dongen
Status: vastgesteld
Plantype: omgevingsvergunning
IMRO-idn: NL.IMRO.0766.OABP20190017-VG01

Ruimtelijke onderbouwing

Hoofdstuk 1 Inleiding

1.1 Aanleiding en doel

De eigenaar van het perceel aan Heuvel 20 te Dongen (kadastraal bekend als gemeente Dongen, sectie A, perceelnummer 3291) is van plan om zijn perceel op te splitsen zodat op het betreffende perceel twee woningen zijn toegestaan.

Het perceel heeft volgens het geldende bestemmingsplan 'Zuid en West Dongen' (vastgesteld op 30 september 2010) de bestemming 'Wonen'. Het initiatief is in strijd met het geldende bestemmingsplan aangezien ter plaatse van het beoogde bouwproject geen bouwvlak is opgenomen. Door middel van een omgevingsvergunning voor gebruik in strijd met het bestemmingsplan kan de beoogde ontwikkeling mogelijk worden gemaakt. In dat kader dient een ruimtelijke onderbouwing (hierna: RO) te worden opgesteld en de benodigde milieuonderzoeken te worden uitgevoerd.

1.2 Ligging projectgebied

Het projectgebied bevindt zich in het zuidwesten van de kern Dongen. Aangezien Heuvel voor autoverkeer een eenrichtingsweg is, is het gebied enkel via de westelijk gelegen Dunantstraat en Pasteurstraat te bereiken. Wel staan er fietspaaltjes tussen de Heuvel en het Heuvelplein waardoor fietsverkeer over de gehele Heuvel ongehinderd doorgang wordt verleend.

De omgeving wordt voornamelijk gekenmerkt door ruim opgezette vrijstaande woningen met tuin. In figuur 1.1 is de ligging van het projectgebied weergegeven.

afbeelding "i_NL.IMRO.0766.OABP20190017-VG01_0001.png"

Figuur 1.1 Ligging projectgebied (Bron: Google Maps, 2018)

1.3 Geldend bestemmingsplan

Voor het perceelsgedeelte waarop de nieuwe woning gebouwd zal worden geldt het bestemmingsplan 'Zuid en West Dongen' (vastgesteld op 30 september 2010). De gronden van de locatie zijn aangeduid met de bestemming 'Wonen', zonder nadere aanduidingen. Daarnaast geldt ook het bestemmingsplan Zuid en West Dongen - partiële herziening 2015. Met de vaststelling van deze partiële herziening is het bestemmingsplan aangepast op onder meer de meest recente regelingen, om onderlinge verschillen tussen bestemmingsplannen weg te werken en enkele kleine bouwplannen mogelijk te maken.

De voor 'Wonen' aangewezen gronden zijn bestemd voor het wonen met aan-huis-gebonden beroepen en kleinschalige bedrijfsmatige activiteiten. Ook zijn deze bestemd voor bij deze bestemming behorende voorzieningen, zoals tuinen, parkeervoorzieningen, achterpaden en ontsluitingen, water en nutsvoorzieningen.

Het initiatief om op deze locatie een nieuwe woning te realiseren is in strijd met het geldende bestemmingsplan, omdat volgens artikel 22.4 onder a per bouwperceel ten hoogste één woning is toegestaan. Aangezien het projectgebied in het vigerend bestemmingsplan onderdeel uitmaakt van het kadastrale perceel Heuvel 20, wordt hieraan getoetst. Daarnaast is strijdigheid geconstateerd met artikel 22.2.1 onder a, waarin wordt gesteld dat enkel binnen een bouwvlak hoofdgebouwen met de daarbij horende aan- en uitbouwen, bijgebouwen en bouwwerken, geen gebouwen zijnde gebouwd mogen worden. Op de overige gronden zijn volgens het bestemmingsplan uitsluitend bouwwerken, geen gebouwen en geen overkapping zijnde toegestaan.

afbeelding "i_NL.IMRO.0766.OABP20190017-VG01_0002.png"

Figuur 1.2 Bestemmingsplan 'Zuid en West Dongen' (Bron: ruimtelijkeplannen, 2018)

Hoofdstuk 2 Planbeschrijving

2.1 Huidige situatie

In figuur 2.1 is de exacte locatie van het projectgebied weergegeven. Het gebied bestaat momenteel uit een tuin gesitueerd tussen de bestaande woning aan Heuvel 20 en de voetgangersstrook 'Aletta Jacobsstraat'. De locatie ligt in het historisch centrum, waarvoor een hoge archeologische en cultuurhistorische waarde geldt. Het straatpatroon wordt voornamelijk bepaald door de diverse vrijstaande woningen en het groene karakter.

Voor gemotoriseerd verkeer is Heuvel een doodlopende straat. Door de verkeerspaaltjes aan het einde van de doodlopende straat (oostzijde) wordt een afscheiding gevormd tussen Heuvel en het Heuvelplein.

In de directe omgeving komt voornamelijk een woonfunctie voor. Circa 90 meter ten oosten van het projectgebied ligt de rivier Donge. Ten noordoosten van het projectgebied en aan de oostzijde van de rivier Donge ligt het bedrijfsverzamelcomplex 'Heuvelpark'. In dit bedrijfsverzamelcomplex zijn diverse (start-up) bedrijven gevestigd, waaronder een lederfabriek en een groothandel. Verder richting het zuiden liggen verschillende sportvelden.

In figuur 2.2 t/m 2.5 is de huidige situatie van het projectgebied weergegeven.

afbeelding "i_NL.IMRO.0766.OABP20190017-VG01_0003.png"

Figuur 2.1 Luchtfoto

afbeelding "i_NL.IMRO.0766.OABP20190017-VG01_0004.png"

Figuur 2.2 Aanzicht vanaf noordoostzijde projectgebied

afbeelding "i_NL.IMRO.0766.OABP20190017-VG01_0005.png"

Figuur 2.3 Aanzicht vanaf noordwestzijde projectgebied

afbeelding "i_NL.IMRO.0766.OABP20190017-VG01_0006.png"

Figuur 2.4 Aanzicht vanaf woning aan Heuvel 20

2.2 Toekomstige situatie

De eigenaar van het perceel aan Heuvel 20 te Dongen is van plan om zijn perceel op te splitsen zodat ter plaatse twee woningen zijn toegestaan. Er zal een nieuwe vrijstaande woning gerealiseerd worden op de westzijde van het perceel, tussen de bestaande woning aan Heuvel 20 en de voetgangersstrook 'Aletta Jacobsstraat'. Figuur 2.5 toont een inrichtingsschets van de toekomstige situatie.

afbeelding "i_NL.IMRO.0766.OABP20190017-VG01_0007.png"

Figuur 2.5 Inrichtingstekening van de toekomstige situatie

(Bron: MOOK bouwkundig teken & adviesbureau, 2019)

De te bouwen woning bestaat uit drie lagen en kent een eenzijdig oplopende kap. De goothoogte van de woning ligt op 6,54 meter en de maximale bouwhoogte op 10 meter. De afstand van de woning tot aan de zijdelingse perceelgrens bedraagt 2 meter. De afstand van de woning tot aan de voorste perceelgrens bedraagt 1 meter.

De nieuwe woning wordt gerealiseerd in een cultuurhistorisch en archeologisch waardevol gebied. In paragraaf 4.5 wordt aandacht besteed aan deze waarden en de inpassing van de woning. De nieuwe woning wordt qua materialisering en architectuur in een vergelijkbare stijl gebouwd als de bestaande woningen in de directe omgeving. Met het gebruik van natuurlijke materialen wordt aangesloten bij het bestaande straat- en bebouwingsbeeld. In figuur 2.6 zijn de aanzichten van de voorgevel, de achtergevel en beide zijgevels in beeld gebracht. Figuur 2.7 toont de verschillende perspectieven van de nieuwe woning. De overige ontweptekeningen zijn weergegeven in bijlage 1.

afbeelding "i_NL.IMRO.0766.OABP20190017-VG01_0008.png"

Figuur 2.6 Aanzichten toekomstige woning (Bron: MOOK bouwkundig teken & adviesbureau, 2019)

afbeelding "i_NL.IMRO.0766.OABP20190017-VG01_0009.png"

Figuur 2.7 Perspectieven toekomstige woning (Bron: MOOK bouwkundig teken & adviesbureau, 2019)

Hoofdstuk 3 Beleidskader

3.1 Inleiding

Door de verschillende overheden is beleid geformuleerd ten aanzien van ruimtelijke ontwikkelingen. Paragraaf 3.2 behandelt het rijksbeleid. Het provinciaal beleid is opgenomen in paragraaf 3.3. Tot slot wordt in paragraaf 3.4 de beoogde ontwikkeling getoetst aan het gemeentelijk beleid.

3.2 Rijksbeleid

3.2.1 Structuurvisie Infrastructuur en Ruimte (2012)

De Structuurvisie Infrastructuur en Ruimte (SVIR) bevat plannen voor ruimte en mobiliteit. In dit beleidsdocument staat beschreven in welke grote infrastructurele projecten het kabinet tot en met 2040 wil gaan investeren. Er is sprake van een hoog abstractieniveau: de visie richt zich alleen op nationale belangen zoals een goed vestigingsklimaat, een degelijk wegennet en de waterveiligheid. De ambities die tot 2028 zijn geformuleerd luiden als volgt:

  • het vergroten van de concurrentiepositie door de ruimtelijk- economische structuur te versterken;
  • het verbeteren van de bereikbaarheid;
  • zorgen voor een leefbare en veilige omgeving, met unieke natuurlijke en cultuurhistorische waarden.

In de SVIR zijn nationale belangen opgenomen die zorgen voor een gegarandeerde basiskwaliteit voor alle bewoners van Nederland. Naast de drie hoofddoelen wordt een zorgvuldig gebruik van de schaarse ruimte bevorderd. Bij toekomstige ontwikkelingen heeft inbreiding en herstructurering de voorkeur boven uitbreiding. Nieuwe ontwikkelingen vinden eerst plaats in het bestaande stedelijk gebied of binnen bestaande bebouwing. Wanneer uitbreiding buiten het stedelijk gebied noodzakelijk is dan is een optimale inpassing en bereikbaarheid van de ontwikkeling van belang. Hiervoor is de ladder voor duurzame verstedelijking geïntroduceerd.

Toetsing

Bij de voorgenomen ontwikkeling zijn geen nationale belangen in het geding. Er zal zorg worden gedragen voor een zorgvuldige afweging en een transparante besluitvorming.

3.2.2 Besluit algemene regels ruimtelijke ordening (Barro)

Het Barro is de juridische vertaling van het beleid dat geschetst is in het SVIR. Dit beleidsdocument bevat regels die doorwerken naar lagere overheden. Dit betekent dat de regels uit het Barro ook geïmplementeerd moeten worden in provinciale en gemeentelijke ruimtelijke plannen. Evenals de SVIR wordt het Barro gekenmerkt door een hoog abstractie- en schaalniveau. Het Barro bevat regels voor bijvoorbeeld de mainport ontwikkeling van Rotterdam, het kustfundament en defensie.

Toetsing

Evenals de SVIR wordt het Barro gekenmerkt door een hoog abstractie- en schaalniveau. Het Barro vormt daardoor geen beperkingen voor de beoogde ontwikkeling aan Heuvel 20 te Dongen.

3.2.3 Ladder voor duurzame verstedelijking (art. 3.1.6 lid 2 Bro)

Zorgvuldig ruimtegebruik is het uitgangspunt van de (rijks)overheid. Om dit principe beter te borgen is in 2012 de ladder voor duurzame verstedelijking opgenomen in het Besluit ruimtelijke ordening (artikel 3.1.6). Hieruit volgt dat alle ruimtelijke besluiten die een nieuwe stedelijke ontwikkeling mogelijk maken, aandacht moeten besteden aan de ladder voor duurzame verstedelijking. De grens van een stedelijke ontwikkeling ligt bij woningen op basis van jurisprudentie op circa 11-14 woningen.

De ladder voor duurzame verstedelijking bestaat uit twee stappen: de eerst stap bestaat uit het aantonen van de behoefte voor de beoogde ontwikkeling. Voor de tweede stap wordt er in beginsel vanuit uitgegaan dat nieuwe stedelijke ontwikkeling in bestaand stedelijk gebied wordt gerealiseerd. Indien de nieuwe stedelijke ontwikkeling voorzien wordt buiten het bestaand stedelijk gebied, dient dit nadrukkelijk te worden gemotiveerd in de toelichting.

Toetsing

De ontwikkeling van één woning binnen bestaand stedelijk gebied, is geen stedelijke ontwikkeling (uitspraak Raad van State van 16 september 2015, zaaknummer 201501297). Derhalve is toetsing aan de Ladder voor duurzame verstedelijking niet noodzakelijk.

3.2.4 Conclusie

Het rijksbeleid vormt geen beperkingen voor de beoogde ontwikkeling aan Heuvel 20 te Dongen.

3.3 Provinciaal beleid

3.3.1 Omgevingsvisie Noord-Brabant

In de Omgevingsvisie Noord-Brabant (december 2018) is het provinciaal beleid ten aanzien van de ruimtelijke ontwikkelingen in de provincie Noord-Brabant op hoofdlijnen uiteengezet voor de periode tot 2050. Naast een beeld van het Noord-Brabant van nu is een beeld geschetst van het welvarend, verbonden, klimaatproof en vernieuwend Noord-Brabant van 2050.

De provincie heeft de volgende kernwaarden geformuleerd die leidend zijn:

  • we gaan voor meerwaarde-creatie;
  • we gaan voor technische én sociale innovatie;
  • we gaan kwaliteit boven kwantiteit;
  • we gaan voor steeds beter;
  • we gaan voor proactief en preventief boven gevolgbeperking en herstel

Naast de basisopgave, werken aan veiligheid, gezondheid en omgevingskwaliteit, worden vier hoofdopgaven onderscheiden die nauw met elkaar samenhangen:

  • Werken aan de Brabantse energietransitie;
  • Werken aan een klimaatproof Brabant;
  • Werken aan de slimme netwerkstad;
  • Werken aan een concurrerende, duurzame economie.

Samen met andere partijen zoals gemeenten en bedrijven wil de provincie uitvoering geven aan projecten die passen binnen deze opgaven. Van belang is dat het in de toekomst ook goed wonen, werken en verblijven blijft. Werken aan een goede omgevingskwaliteit zowel in de bebouwde als in de onbebouwde omgeving is het uitgangspunt.

Toetsing

Stedelijke ontwikkelingen dienen in principe plaats te vinden binnen 'bestaand stedelijk gebied'. Herbestemmen wordt gezien als het nieuwe bouwen: als gevolg van economische, technologische en maatschappelijke ontwikkelingen staan de steden en dorpen van Brabant steeds vaker voor (omvangrijke) herbestemmings- en transformatieopgaven in hun bebouwde gebied. Hier liggen namelijk de kansen om de forse woningbouwopgave in de komende tien jaar te realiseren. De beoogde ontwikkeling draagt hieraan bij.

3.3.2 Interim omgevingsverordening Noord-Brabant

Op 1 januari 2021 treedt de Omgevingswet in werking. Vanwege de Omgevingswet moet de provincie haar regelsysteem aanpassen. Straks heeft de provincie nog maar één verordening waarin alle regels zijn opgenomen over de fysieke leefomgeving. De Interim omgevingsverordening Noord-Brabant is een eerste stap op weg naar de definitieve omgevingsverordening. De Interim omgevingsverordening Noord-Brabant is beleidsneutraal van karakter. Dat betekent dat er geen nieuwe beleidswijzigingen zijn doorgevoerd, behalve als deze voortvloeien uit vastgesteld beleid, zoals de Omgevingsvisie Nood-Brabant. In beginsel zijn de huidige regels met het huidige beschermingsniveau gehandhaafd.


In hoofdstuk 3 van de omgevingsverordening zijn zogenaamde instructieregels opgenomen die gemeenten moeten toepassen in hun bestemmingsplannen. Vooruitlopend op de Omgevingswet richten de instructieregels zich op een evenwichtige toedeling van functies (in plaats van het bestemmen van ontwikkelingen). Dit betekent dat de regels ook vanuit functies (van gebieden) zijn opgebouwd. Daarnaast richten de regels zich op een goede omgevingskwaliteit, inclusief een veilige en gezonde leefomgeving (in plaats van een goede ruimtelijke kwaliteit). Tevens zijn een aantal algemene basisprincipes opgenomen.


Het volgende artikel is relevant voor de beoogde ontwikkeling.

Artikel 3.42 duurzame stedelijke ontwikkeling

Lid 1

Een bestemmingsplan dat voorziet in de ontwikkeling van een locatie voor wonen, werken of voorzieningen ligt binnen 'stedelijk gebied' en bevat een onderbouwing dat:

  • a. de ontwikkeling past binnen de regionale afspraken, bedoeld in afdeling 5.4 Regionaal samenwerken;
  • b. het een duurzame stedelijke ontwikkeling is.

Lid 2

Een duurzame stedelijke ontwikkeling voor wonen, werken of voorzieningen:

  • a. bevordert een goede omgevingskwaliteit met een veilige en gezonde leefomgeving;
  • b. bevordert zorgvuldig ruimtegebruik, waaronder de transformatie van verouderde stedelijke gebieden;
  • c. geeft optimaal invulling aan de mogelijkheden voor productie en gebruik van duurzame energie;
  • d. houdt rekening met klimaatverandering, waaronder het tegengaan van hittestress en voldoende ruimte voor de opvang van water;
  • e. geeft optimaal invulling aan de mogelijkheden voor duurzame mobiliteit;
  • f. draagt bij aan een duurzame, concurrerende economie.

Toetsing

Het 'stedelijk gebied' zoals gehanteerd door de provincie bestaat uit het 'stedelijk concentratiegebied' en de 'kernen in landelijk gebied'. Het projectgebied ligt binnen het 'stedelijk concentratiegebied' zoals gehanteerd binnen de Interim omgevingsverordening Noord-Brabant (figuur 3.1). Binnen deze gebieden kan worden voorzien in de ruimte voor wonen, werken en andere voorzieningen om zo de verstedelijking zo veel mogelijk te bundelen. Binnen het stedelijk gebied liggen verschillende mogelijkheden voor inbreiding, herstructurering en intensief, meervoudig ruimtegebruik. Voor de toets aan de regionale afspraken zoals genoemd in artikel 3.42 wordt verwezen naar paragraaf 3.2.3.

afbeelding "i_NL.IMRO.0766.OABP20190017-VG01_0010.png"

Figuur 3.1 Uitsnede Interim omgevingsverordening Noord-Brabant (Bron: Provincie Noord-Brabant)

De ontwikkeling kan daarnaast ook gezien worden als duurzame stedelijke ontwikkeling. Het binnenterrein wat in gebruik was en bestemd is voor centrumactiviteiten wordt herontwikkeld tot een woongebied waarbij nieuwe, duurzame en gasloze, bebouwing wordt gerealiseerd. De provincie wil dat de kansen voor functiemenging, inbreiding, herstructurering en zo nodig transformatie in het stedelijk gebied goed worden benut, inclusief de mogelijkheden voor intensivering en meervoudig ruimtegebruik. Hierdoor is minder ruimte nodig voor stedelijke uitbreidingen.

De openbare ruimte is zodanig ontworpen, dat deze levensloopbestendig wordt uitgevoerd. Verder zullen maatregelen getroffen worden ten behoeve van de benodigde watercompensatie. Het mogelijk toepassen van halfverharding bij de parkeerplaatsen is daarbij voorzien. Daarnaast wordt er voldoende groen aangelegd als infiltratiemogelijkheid voor regenwater. Dit groen levert tevens een bijdrage aan het tegengaan van hittestress.

3.3.3 Conclusie

Het initiatief voor de realisatie van een nieuwe woning aan Heuvel 20 te Dongen sluit aan op het provinciale beleid voor stedelijke herontwikkeling. Er wordt binnen het bestaand stedelijk gebied van de kern Dongen gebouwd.

3.4 Gemeentelijk beleid

3.4.1 Structuurvisie Dongen 2020

De projectlocatie aan Heuvel 20 te Dongen is op de structuurvisiekaart (figuur 3.2) aangewezen als 'bestaand bebouwd gebied'. Verder ligt de locatie binnen de structuren 'beheer en onderhoud bestaande woongebieden' en 'Kwaliteit I' van het versterken van het karakter van bebouwingslinten binnen cultuurhistorie. Ten oosten van het projectgebied bevinden zich een leerlooierijcomplex en loopt de rivier Donge als 'beeldbepalend water', waarbij de wens bestaat om deze te ontwikkelen tot recreatieve routes.

Het versterken van bebouwingslinten binnen cultuurhistorie is binnen het projectgebied aangemerkt als 'Kwaliteit I'. Deze bebouwingslinten hebben een zeer hoge waardering gekregen. Het bebouwingsbeeld van Heuvel en Heuvelstraat bestaat overwegend uit vrijstaande en één- en tweelaagse bebouwing gepositioneerd in een eenvormige rooilijn. De nokrichting van de bebouwing in de straat komt zowel parallel als haaks op de straatrichting voor. De bebouwingslinten en ontginningsassen zijn bepalend voor de ruimtelijke structuur van de gemeente en dienen als zodanig behouden te blijven.

Wat betreft de cultuurhistorische waarde van de bebouwingslinten in de gemeente wordt onderscheid gemaakt in drie categorieën: kwaliteit zeer hoog, hoog en redelijk hoog. Behoud en versterking van deze kwaliteiten is van groot belang. Belangrijkste ruimtelijk en functionele kenmerken die bepalend zijn voor de kwaliteit van de linten zijn het kenmerkende gedifferentieerde bebouwingspatroon met karakteristieke (historische) bebouwing, variatie in functies en gebruik en beeldbepalende groenelementen van (open) particuliere kavels en erven en structuren in de openbare ruimte. Ontwikkelingen met betrekking tot functieveranderingen en nieuwe bebouwingselementen kunnen de cultuurhistorische waarden en kenmerken van de bebouwingslinten onder druk zetten. Nieuwe ontwikkelingen zullen daarom te allen tijde binnen de kleinschalige context van de linten moeten worden bezien. Grootschalige ontwikkelingen zoals glastuinbouw passen daar bijvoorbeeld niet bij. De welstandsnota, waarin de waarden van de bebouwingslinten zijn beschreven en waarin gebiedsgerichte welstandscriteria voor de bebouwingslinten zijn gegeven, vormt hiervoor samen met groenstructuurplannen het toetsingskader.

afbeelding "i_NL.IMRO.0766.OABP20190017-VG01_0011.png"

Figuur 3.2 Uitsnede structuurvisiekaart gemeente Dongen (Bron: Gemeente Dongen, 2009)

3.4.2 Welstandsnota Gemeente Dongen (2008)

Dit beleid is enerzijds gericht op het behouden en versterken van diversiteit in bebouwing en uiterlijk en anderzijds op het aanmoedigen van contrasten. De rivier Donge en de looierij zijn twee historische elementen in de directe omgeving van Heuvel 20. Wat betreft deze historische elementen voert de gemeente een actief beleid op het gebied van cultuurhistorische waarden. Hierbij wordt aandacht besteed aan onderzoek en inventarisatie van cultuurhistorische waarden, met inbegrip van de archeologische monumenten en waarden. Voor bijzondere gebieden zijn of worden historische verkenningen opgesteld. Zo zijn er verkenningen opgesteld voor het gebied rond Kerkstraat, Heuvel en Heuvelstraat.

3.4.3 Woningbouwplanning

De gemeente beschikt over een door de provincie goedgekeurd woningbouwprogramma, dat in de periode 2016-2025 voorziet in de bouw van in totaal 1.100 woningen.

3.4.4 Toetsing en conclusie

De beoogde ontwikkeling valt binnen het bestaand bebouwd gebied. Ook valt het projectgebied binnen een cultuurhistorische kwaliteitzone volgens de gemeentelijke structuurvisie. Deze vormt een beeldbepalend, markant element binnen het bebouwingslint. Door middel van rooilijnen, materialisering en positionering van de woning wordt aangesloten bij het straatbeeld en de historische elementen uit de omgeving.

De voorgenomen ontwikkeling past daarom binnen de kaders van het gemeentelijk beleid.

Hoofdstuk 4 Milieu aspecten

4.1 Verkeer en parkeren

4.1.1 Normstelling en beleid

Op het gebied van verkeer en vervoer is er geen specifieke wetgeving die relevant is voor de voorgenomen activiteit. Wel dient in het kader van het ruimtelijk plan dat de activiteit mogelijk maakt, te worden onderbouwd dat het geheel voldoet aan een goede ruimtelijke ordening. Dit volgt uit de Wet ruimtelijke ordening (Wro). Op basis van vaste jurisprudentie dient in dat kader onder meer te worden aangetoond dat een goede verkeersafwikkeling is gewaarborgd, er voldoende parkeergelegenheid beschikbaar is en dat de verkeersveiligheid voldoende is gewaarborgd.

De parkeerbehoefte is bepaald op basis van het rapport 'Actualisatie Verkeerbeleidsplan' (2013) van de gemeente Dongen. Voor de berekening van de verkeersgeneratie is uitgegaan van kencijfers uit de CROW publicatie 381 ('Toekomstigbestendig parkeren'). Hierbij geldt een ligging in de rest bebouwde kom. De gemeente Dongen heeft een matig stedelijk karakter op basis van de adressendichtheid.

4.1.2 Toetsing

Ontsluiting

Aangezien de Heuvel voor gemotoriseerd verkeer een eenrichtingsweg is, is het projectgebied enkel via de westelijk gelegen Dunantstraat en Pasteurstraat te bereiken. Via deze wegen is een goede ontsluiting in verdere richtingen mogelijk. Door de verkeerspaaltjes aan het einde van de doodlopende straat (oostzijde) wordt een afscheiding gevormd tussen Heuvel en het Heuvelplein. Voor fietsers en voetgangers is het projectgebied wel vanuit twee richtingen toegankelijk.

Parkeren

De parkeerbehoefte wordt bepaald aan de hand van de gemeentelijke parkeernormen. De parkeernorm voor één vrijstaande woning bedraagt minimaal 1,8 tot maximaal 2,6 parkeerplaatsen. In deze norm zit een bezoekersdeel van 0,3 parkeerplaats per woning. Volgens het gemeentelijk beleid dient, door het hoge percentage autogebruik in de gemeente, de bovenkant van deze bandbreedte te worden aangehouden. De norm van 2,6 parkeerplaatsen voor één woning bedraagt afgerond 3 parkeerplaatsen.

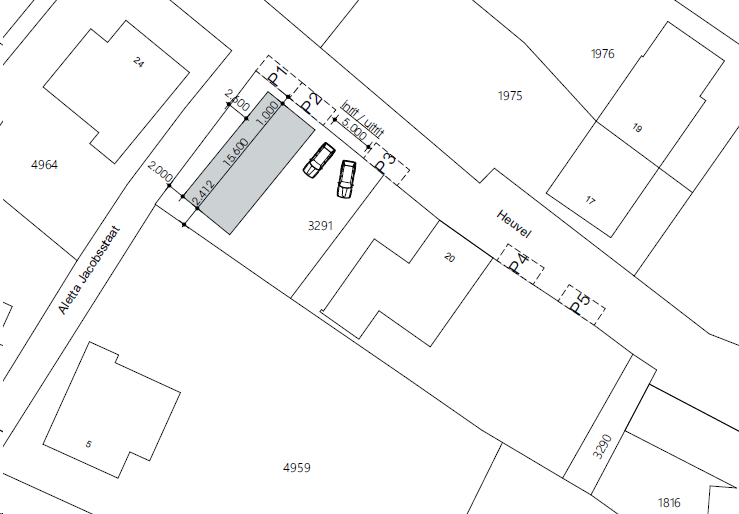
Ten behoeve van de nieuwe woning worden op eigen terrein twee parkeerplekken naast elkaar gerealiseerd. De gehele strook tussen de weg en de perceelgrens van Heuvel 20 met het kadastraal perceel DGN01-A-3290 is in eigendom van de gemeente Dongen. Daaronder bevinden zich alle kabels en aansluitingen voor de gehele straat. Er is door de gemeente Dongen ter plaatse verharding op aangebracht, hierop kunnen auto's parkeren en deze verharding biedt ruimte om afvalbakken te plaatsen. Deze verharding biedt in de huidige situatie ruimte aan maximaal 6 auto's.

Als gevolg van het aanleggen van de inrit van de nieuwe woning en de daarbij behorende breedte van de inrit zal deze verharding na uitvoering van het plan ruimte bieden aan maximaal 5 auto's. Dit is weergegeven in figuur 4.1. Bovendien is het aan de Heuvel toegestaan om op de straat te parkeren waarbij het doorgaand verkeer niet gehinderd wordt of mag worden. Tevens is er in de directe omgeving (omliggende straten) parkeergelegenheid aanwezig.

afbeelding "i_NL.IMRO.0766.OABP20190017-VG01_0012.png"

Figuur 4.1 Toekomstige parkeermogelijkheden in de openbare ruimte

(Bron: MOOK bouwkundig teken & adviesbureau, 2019)

De resterende parkeerbehoefte van 1 parkeerplaats kan worden opgevangen op de verhardingsstrook tussen de weg en de perceelgrens van Heuvel 20 met het kadastraal perceel DGN01-A-3290 , op straat aan de Heuvel of in de directe omgeving (omliggende straten). Hier is voldoede parkeergelegenheid aanwezig.

Verkeersgeneratie en verkeersafwikkeling

De verkeersgeneratie van één woning is dusdanig beperkt dat dit zal opgaan in het heersende verkeersbeeld van de Heuvel.

4.1.3 Conclusie

De ontsluiting van de projectlocatie is voor alle vervoerswijzen goed. De parkeerbehoefte wordt deels voorzien op het eigen terrein en in de openbare parkeerplaatsen aan de Heuvel en omliggende straten. De nieuwe woning heeft een beperkte verkeersgeneratie wat zal opgaan in het heersende verkeersbeeld. Het aspect verkeer en parkeren staat de ontwikkeling van het plan niet in de weg.

4.2 Bedrijven en milieuzonering

4.2.1 Normstelling en beleid

In het kader van een goede ruimtelijke ordening is het van belang dat bij de aanwezigheid van bedrijven in de omgeving van milieugevoelige functies zoals woningen:

  • ter plaatse van de woningen een goed woon- en leefmilieu kan worden gegarandeerd;
  • rekening wordt gehouden met de bedrijfsvoering en milieuruimte van de betreffende bedrijven.

Om in de bestemmingsregeling de belangenafweging tussen bedrijvigheid en nieuwe woningen in voldoende mate mee te nemen, wordt in dit plan gebruikgemaakt van de VNG-publicatie Bedrijven en milieuzonering (editie 2009). In deze publicatie is een lijst opgenomen waarin de meest voorkomende bedrijven en bedrijfsactiviteiten zijn gerangschikt naar mate van milieubelasting. Voor elke bedrijfsactiviteit is de maximale richtafstand ten opzichte van milieugevoelige functies aangegeven op grond waarvan de categorie-indeling heeft plaatsgevonden. De richtafstanden gelden ten opzichte van het omgevingstype 'rustige woonwijk'. Milieuzonering beperkt zich tot de milieuaspecten met een ruimtelijke dimensie: geluid, geur, gevaar en stof.

4.2.2 Toetsing en conclusie

De beoogde woning blijft binnen het bouwvlak van de bestemming wonen. In de huidige situatie dient reeds rekening te worden gehouden met de aanwezigheid van woningen binnen de bouwvlakken. Ter plaatse zal dan ook sprake zijn van een aanvaardbaar woon- en leefklimaat en de omliggende bedrijven worden niet in de eigen bedrijfsvoering beperkt.

4.3 Externe veiligheid

4.3.1 Normstelling en beleid

Bij ruimtelijke plannen dient ten aanzien van externe veiligheid naar verschillende aspecten te worden gekeken, namelijk:

  • bedrijven waar activiteiten plaatsvinden die gevolgen hebben voor de externe veiligheid;
  • vervoer van gevaarlijke stoffen over wegen, spoor, water of door buisleidingen.

Voor zowel bedrijvigheid als vervoer van gevaarlijke stoffen zijn twee aspecten van belang, te weten het plaatsgebonden risico (PR) en het groepsrisico (GR). Het PR is de kans per jaar dat een persoon dodelijk wordt getroffen door een ongeval, indien hij zich onafgebroken (dat wil zeggen 24 uur per dag gedurende het hele jaar) en onbeschermd op een bepaalde plaats zou bevinden. Het PR wordt weergegeven met risicocontouren rondom een inrichting dan wel infrastructuur. Het GR drukt de kans per jaar uit dat een groep van minimaal een bepaalde omvang overlijdt als direct gevolg van een ongeval waarbij gevaarlijke stoffen betrokken zijn. De norm voor het GR is een oriëntatiewaarde. Het bevoegd gezag heeft een verantwoordingsplicht als het GR toeneemt en/of de oriëntatiewaarde wordt overschreden.

Risicovolle inrichtingen

Het Besluit externe veiligheid inrichtingen (hierna: Bevi) geeft een wettelijke grondslag aan het externe veiligheidsbeleid rondom risicovolle inrichtingen. Op basis van het Bevi geldt voor het PR een grenswaarde voor kwetsbare objecten en een richtwaarde voor beperkt kwetsbare objecten. Beide liggen op een niveau van 10-6 per jaar. Bij de vaststelling van een bestemmingsplan moet aan deze normen worden voldaan, ongeacht of het een bestaande of nieuwe situatie betreft.

Het Bevi bevat geen norm voor het GR; wel geldt op basis van het Bevi een verantwoordingsplicht ten aanzien van het GR in het invloedsgebied van de inrichting. De in het externe veiligheidsbeleid gehanteerde norm voor het GR geldt daarbij als oriëntatiewaarde.

Vervoer van gevaarlijke stoffen

Per 1 april 2015 is het Besluit externe veiligheid transportroutes (Bevt) en de regeling Basisnet in werking getreden. Het Bevt vormt de wet- en regelgeving, en de concrete uitwerking volgt in het Basisnet. Het Basisnet beoogt voor de lange termijn (2020, met uitloop naar 2040) duidelijkheid te bieden over het maximale aantal transporten van, en de bijbehorende maximale risico's die het transport van gevaarlijke stoffen mag veroorzaken. Het Basisnet is onderverdeeld in drie onderdelen: Basisnet Spoor, Basisnet Weg en Basisnet Water. Het Bevt en het bijbehorende Basisnet maakt bij het PR onderscheid in bestaande en nieuwe situaties. Voor bestaande situaties geldt een grenswaarde voor het PR van 10-5 per jaar ter plaatse van kwetsbare en beperkt kwetsbare objecten en een streefwaarde van 10-6 per jaar. Voor nieuwe situaties geldt de 10-6 waarde als grenswaarde voor kwetsbare objecten, en als richtwaarde bij beperkt kwetsbare objecten. In het Basisnet Weg en het Basisnet Water zijn veiligheidsafstanden (PR 10-6 contour) opgenomen vanaf het midden van de transportroute.

Tevens worden in het Basisnet de plasbrandaandachtsgebieden benoemd voor transportroutes waarbinnen beperkingen voor nieuwe ruimtelijke ontwikkelingen gelden. Het Basisnet vermeldt dat op een afstand van 200 m vanaf de rand van het tracé in principe geen beperkingen hoeven te worden gesteld aan het ruimtegebruik. Voor het groepsrisico geldt op grond van het Bevt slechts een oriënterende waarde en alleen in bepaalde gevallen is het doen van een verantwoording van een toename van het GR verplicht.

Besluit externe veiligheid buisleidingen

In het Besluit externe veiligheid buisleidingen (Bevb) wordt aangesloten bij de risicobenadering uit het Besluit externe veiligheid inrichtingen (Bevi) zodat ook voor buisleidingen normen voor het PR en het GR gelden. Op grond van het Bevb dient zowel bij consoliderende bestemmingsplannen als bij ontwikkelingen inzicht te worden gegeven in de afstand tot het PR en de hoogte van het GR als gevolg van het transport van gevaarlijke stoffen door buisleidingen.

4.3.2 Toetsing

Overeenkomstig de professionele risicokaart (https://nederlandprof.risicokaart.nl) waarin relevante risicobronnen getoond worden, zijn in en nabij het projectgebied aan Heuvel 20 te Dongen geen risicovolle inrichtingen gelegen. Circa 230 m ten zuiden van het projectgebied is een hogedruk aardgasleiding van de Gasunie gelegen (Z-522-01). Dit traject heeft geen plaatsgebonden risicocontour van 10-6 per jaar. Het invloedsgebied van het groepsrisico bedraagt 95 m. Het projectgebied is echter niet gelegen binnen het invloedsgebied.

Verder vindt in of nabij het projectgebied geen vervoer van gevaarlijke stoffen plaats over de weg, het spoor of het water.

4.3.3 Conclusie

Het aspect externe veiligheid vormt geen belemmering voor de beoogde ontwikkeling in het projectgebied.

4.4 Kabels en leidingen

4.4.1 Normstelling en beleid

Planologisch relevante leidingen en hoogspanningsverbindingen dienen te worden gewaarborgd. Tevens dient rond dergelijke leidingen rekening te worden gehouden met zones waarbinnen mogelijke beperkingen gelden.

4.4.2 Toetsing en conclusie

Binnen het projectgebied en in de directe omgeving zijn geen planologisch relevante buisleidingen, hoogspanningsverbindingen of straalpaden aanwezig. Het aspect kabels en leidingen staat de beoogde ontwikkeling niet in de weg.

4.5 Archeologie en cultuurhistorie

4.5.1 Archeologie

Normstelling en beleid

Archeologisch onderzoek is noodzakelijk om te bepalen wat de verwachtingswaarde is voor de aanwezigheid van archeologische waarden binnen de projectlocatie en of deze door de voorgenomen bodemingrepen kunnen worden aangetast. Daarom is het binnen het kader van de Wet op de Archeologische Monumentenzorg uit 2007 (WAMZ), voortvloeiend uit het Verdrag van Malta uit 1992, verplicht voorafgaand archeologisch onderzoek uit te voeren.

De archeologische beleidsadvieskaart is vastgesteld door de gemeenteraad op 10 februari 2011 en moet gelezen worden in relatie tot de vastgestelde Erfgoedverordening. Op de gemeentelijke beleidsadvieskaart en volgens de Erfgoedverordening zijn de gronden van het projectgebied aangeduid als AMK terrein van hoge archeologische waarde (figuur 4.1). Voor gronden met deze aanduiding zijn bodemingrepen in principe niet toegestaan. Indien een ingreep dieper gaat dan 0,5 meter min het maaiveld en het planoppervlak 100m2 of meer is, dan is archeologisch onderzoek verplicht. De beoogde ontwikkeling gaat uit van een bebouwd oppervlak van ca. 100 m2, met een normale funderingsdiepte van minimaal 60 cm is archeologisch bureauonderzoek met controle boringen dan ook noodzakelijk.

afbeelding "i_NL.IMRO.0766.OABP20190017-VG01_0013.png"

Figuur 4.1 Uitsnede archeologische beleidsadvieskaart met aanduiding projectgebied 

(Bron: Gemeente Dongen)

Toetsing

Onderzoeksbureau Econsultancy heeft in opdracht van Rho adviseurs voor leefruimte in februari 2019 een archeologisch bureau- en verkennend booronderzoek uitgevoerd. Dit onderzoek is opgenomen in bijlage 2. Het onderzoek is uitgevoerd in het kader van de voorgenomen splitsing van het perceel en de bouw van een nieuwe woning. Het plangebied is gelegen aan de Heuvel 20 te Dongen. In het projectgebied zal een woning worden gerealiseerd. Bij de aanvraag van de hiervoor benodigde omgevingsvergunning is gebleken dat voor het projectgebied een archeologische onderzoeksplicht geldt. Deze onderzoeksplicht vloeit voort uit het Verdrag van Malta (1992) en de Wet algemene bepalingen omgevingsrecht (Wabo, 2010). Het archeologisch onderzoek is noodzakelijk om te bepalen of er archeologische waarden aanwezig zijn binnen het plangebied en of deze door de voorgenomen bodemingrepen kunnen worden aangetast. Doel van het bureauonderzoek is een antwoord te vinden op de vraag wat de gespecificeerde archeologische verwachting voor het plangebied is. Dit wordt uitgevoerd door middel van het verwerven van informatie, aan de hand van bestaande bronnen, over bekende en verwachte archeologische waarden. Met de resultaten van het archeologisch onderzoek kan worden vastgesteld of binnen het plangebied archeologische waarden aanwezig (kunnen) zijn en of vervolgonderzoek dan wel planaanpassing noodzakelijk is. Het inventariserend veldonderzoek (IVO-overig, verkennende fase) heeft tot doel de gespecificeerde archeologische verwachting aan te vullen en te toetsen door middel van boringen. Het veldonderzoek heeft tot doel antwoorden te vinden op wat de bodemopbouw is binnen het plangebied. Tevens dient te worden vastgesteld wat de gevolgen zijn van het in het plangebied aangetroffen bodemprofiel voor de gespecificeerde archeologische verwachting.

Het bureauonderzoek toonde aan dat er zich mogelijk archeologische waarden in het projectgebied zouden kunnen bevinden. Daarom is er aansluitend een inventariserend veldonderzoek in de vorm van een verkennend booronderzoek uitgevoerd. Het veldonderzoek had tot doel antwoorden te vinden op wat de bodemopbouw is binnen het projectgebied en wat de gevolgen zijn van het in het projectgebied aangetroffen bodemprofiel voor de gespecificeerde archeologische verwachting.

Op basis van het aangetroffen dikke eerddek in een vermoedelijk oorspronkelijk nat gebied, wordt de verwachtingswaarde voor archeologische waarden uit de perioden Laat Paleolithicum tot en met Romeinse tijd bijgesteld naar laag. Het projectgebied houdt op basis van zijn ligging in het oudste deel van de historische kern van Dongen wel een hoge verwachtingswaarde voor resten uit de Middeleeuwen en Nieuwe tijd.

Conclusie

Gezien deze hoge archeologische verwachting is volgens onderzoeksbureau Econsultancy vervolgonderzoek noodzakelijk om deze te toetsen. Het vervolgonderzoek zou het beste uitgevoerd kunnen worden in de vorm van een proefsleuvenonderzoek. Aangezien de gemeente Dongen (samen met het Monumentenhuis Brabant bv) bevoegd gezag in deze is, is gevraagd een besluit te nemen omtrent dit onderwerp. De archeologische beoordeling en het advies zijn opgenomen in bijlage 3.

In tegenstelling tot het door het onderzoeksbureau Econsultancy gegeven selectieadvies, om over te gaan tot een inventariserend proefsleuvenonderzoek, adviseert Monumentenhuis Brabant om het projectgebied vrij te geven voor de voorgenomen ontwikkeling. De voorgenomen ontwikkeling overschrijdt net de gemeentelijke ondergrenzen. Vanwege de aanwezigheid van de dikke eerdlaag in het projectgebied, zal de overgang naar het dekzand naar verwachting niet worden bereikt bij voorgenomen ontwikkeling die 0,6 meter diep gaat. Vanwege het gebruik van het projectgebied als hof en boomgaard is de verwachting dat er ook weinig sporen uit de Late Middeleeuwen en Nieuwe tijd zullen worden aangetroffen. Monumentenhuis Brabant adviseert wel in het gemeentelijk selectiebesluit op te nemen, dat het omschreven gebied wordt vrijgegeven voor de voorziene planontwikkeling en (bouw)vergunning wordt verleend door de gemeente Dongen onder voorwaarde, dat bij eventuele toevalsvondsten hiervan melding wordt gedaan conform art. 5.10 van de Erfgoedwet, die vanaf 1 juli 2016 van kracht is. Dit kan telefonisch bij het Meldpunt Provinciaal Depot Bodemvondsten Noord-Brabant. Het aspect archeologie vormt hierdoor geen belemmering voor de beoogde ontwikkeling.

4.5.2 Cultuurhistorie

Normstelling en beleid

Nota Cultureel Erfgoed Dongen (2016-2018)

De Nota Cultureel Erfgoed Dongen is vastgesteld op 10 maart 2016. De nota bundelt het huidige en nieuwe beleid omtrent cultureel erfgoed in één erfgoednota. Hierbij is de basis gelegd voor een brede, integrale basis voor behoud en versterking van cultuurhistorisch erfgoed in de gemeente Dongen.

De gemeente Dongen maakt in de nota haar beleid en ambities op het gebied omtrent cultureel erfgoed kenbaar. Hierbij wordt gebruik gemaakt van onder ander het provinciaal beleid, dat is vertaald naar gemeentelijk beleid, de Cultuurhistorische Waardenkaart en de Archeologische beleidsadvieskaart.

Cultuurhistorische waardenkaart (CHW)

De 'Cultuurhistorische waardenkaart' (vastgesteld 26 september 2006) van de provincie Noord-Brabant vormt het kader voor het inhoudelijke cultuurhistorische beleid met behulp waarvan dat beleid getoetst en ontwikkeld kan worden. Op de cultuurhistorische waardenkaart zijn meerdere aanduidingen opgenomen (historische bouwkunst, historische stedenbouw, historische geografie (lijnen en vlakken), historische groenstructuren, historische zichtrelaties, archeologische monumenten en indicatieve archeologische waarden).

De Cultuurhistorische waardenkaart van de provincie is in de gemeente doorvertaald naar de cultuurhistorische waardenkaart van de gemeente Dongen (vastgesteld op 15 januari 2014).

Toetsing

In figuur 4.2 is het projectgebied weergegeven in de uitsnede van de Cultuurhistorische waardenkaart van de gemeente Dongen. Uit deze waardenkaart blijkt dat het projectgebied zich kenmerkt door de historische dorpsstructuur/lintbebouwing (gebiedstype 1).

afbeelding "i_NL.IMRO.0766.OABP20190017-VG01_0014.png"

Figuur 4.2 Cultuurhistorische waardenkaart gemeente Dongen met aanduiding projectgebied

(Bron: Gemeente Dongen, 2014)

In dit gebied gaat het om de samenhang tussen structuren en historische bebouwing met eventueel het aanwezige groen en zijn de huidige stedenbouwkundige kwaliteiten uitgangspunt bij ruimtelijke plannen. De belangrijkste objecten zijn reeds beschermd als gemeentelijk of rijksmonument of staan op de aandachtslijst van identiteitsbepalende objecten.

In de directe omgeving van het projectgebied liggen volgens de cultuurhistorische waardenkaart van de gemeente Dongen verschillende cultuurhistorische aanduidingen. Deze waarden worden niet beïnvloed door de ontwikkeling. De historische lijnelementen worden behouden en de omliggende bebouwing wordt niet aangetast. Bij het ontwerp van de nieuwe woning wordt op een acceptabele manier rekening gehouden met omliggende cultuurhistorische waarden.

Conclusie

De voorgenomen ontwikkeling past binnen het aspect cultuurhistorie.

4.6 Bodem

4.6.1 Normstelling en beleid

Op grond van het Besluit ruimtelijke ordening dient in verband met de uitvoerbaarheid van een plan rekening gehouden te worden met de bodemgesteldheid in het projectgebied. Er dient te worden bekeken of de bodemkwaliteit voldoende is voor de beoogde functie en vastgesteld moet worden of er sprake is van een saneringsnoodzaak. In de Wet bodembescherming is bepaald dat indien de desbetreffende bodemkwaliteit niet voldoet aan de norm voor de beoogde functie, de grond zodanig dient te worden gesaneerd dat zij kan worden gebruikt door de desbetreffende functie (functiegericht saneren). Nieuwe bestemmingen dienen bij voorkeur op schone grond te worden gerealiseerd.

4.6.2 Toetsing en conclusie

Ten behoeve van voorliggende ontwikkeling is een verkennend bodemonderzoek uitgevoerd. Dit onderzoek (Econsultancy, 28 december 2018, 7970.002) is bijgevoegd in bijlage 4.

Op basis van het vooronderzoek is geconcludeerd dat de onderzoekslocatie onderzocht dient te worden

volgens de strategie "onverdacht" (ONV). Bij onverdachte locaties luidt de onderzoekshypothese dat de bodem niet verontreinigd is. De bodem bestaat voornamelijk uit zwak siltig, matig fijn zand. De bovengrond is bovendien zwak humeus. De ondergrond is plaatselijk zwak grindhoudend. Het opgeboorde materiaal ter plaatse van boring 2 (traject 0,8-1,1 m -mv) is zwak baksteenhoudend. Verder zijn er in het opgeboorde materiaal zintuiglijk geen bijmengingen met bodemvreemd materiaal waargenomen. Tijdens de veldwerkzaamheden zijn op het maaiveld van de onderzoekslocatie, alsmede in de bodem, geen puin(resten) of andere asbestverdachte materialen aangetroffen.

De bovengrond is licht verontreinigd met lood en PAK. In de ondergrond zijn geen verontreinigingen geconstateerd. In het grondwater zijn geen verontreinigingen geconstateerd. De vooraf gestelde hypothese, dat de onderzoekslocatie als "onverdacht" kan worden beschouwd wordt, op basis van de lichte verontreinigingen, verworpen. Echter, gelet op de aard en mate van verontreiniging, bestaat er géén reden voor een nader onderzoek en bestaan er met betrekking tot de milieuhygiënische kwaliteit van de bodem géén belemmeringen voor de bestemmingsplanweiziging de onderzoekslocatie. Indien er bij werkzaamheden grond vrijkomt die niet op de locatie kan worden hergebruikt, zijn de regels van het Besluit bodemkwaliteit of de regionale bodemkwaliteitskaart van toepassing.

4.7 Water

4.7.1 Normstelling en beleid

Waterbeheer en watertoets

Voor alle ruimtelijke plannen dient een watertoets te worden uitgevoerd. In deze watertoets wordt aangegeven hoe in het betreffende plan met water wordt omgegaan. Daarbij wordt allereerst sterk ingezet op preventie van verontreiniging en nuttig hergebruik van water op lokaal niveau. Daarnaast is voor de retentiebehoefte de voorkeurvolgorde; infiltreren, retentie binnen het projectgebied, retentie buiten het projectgebied of berging in bestaand watersysteem. Bij de berekening van de retentie worden de eisen zoals gevisualiseerd in figuur 4.3 uit deze paragraaf gehanteerd. Aspecten als oppervlaktewater, grondwater, hemelwater, afvalwater, waterkwaliteit en -kwantiteit, omgevingsfactoren en waterberging komen hierin aan de orde.

Met de watertoets wordt de waterbeheerder, in dit geval het waterschap Brabantse Delta, tijdig betrokken in het ontwerpproces. Opmerkingen van de waterbeheerder worden vervolgens verwerkt in deze waterparagraaf.

Beleid duurzaam stedelijk waterbeheer

Op verschillende bestuursniveaus zijn de afgelopen jaren beleidsnota's verschenen aangaande de waterhuishouding, allen met als doel een duurzaam waterbeheer (kwalitatief en kwantitatief). Deze paragraaf geeft een overzicht van de voor het projectgebied relevante nota's, waarbij het beleid nader wordt behandeld.

Europa:

  • Kaderrichtlijn Water (KRW)

Nationaal:

  • Nationaal Waterplan (NW)
  • Nationaal Bestuursakkoord Water (NBW)
  • Waterwet

Provinciaal

  • Provinciaal Milieu- en Waterplan 2016-2021

Waterschapsbeleid

Het waterschap Brabantse Delta is onder andere verantwoordelijk voor het waterbeheer in de gemeente Dongen. Het gaat hierbij om de volgende wettelijke kerntaken: het zuiveringsbeheer, watersysteembeheer, beheer van dijken en beheer van vaarwegen. Het watersysteembeheer -waaronder grondwater- heeft daarbij twee doelen: zowel de zorg voor gezond water als de zorg voor voldoende water van voldoende kwaliteit. Het beleid en de daarmee samenhangende doelen van het waterschap zijn opgenomen in het waterbeheerplan 2016-2021, wat tot stand is gekomen in samenspraak met de waterpartners. Zo zijn bijvoorbeeld relevante waterthema's gekoppeld aan de belangrijkste ruimtelijke ontwikkelingen in de regio.

Daarnaast heeft het waterschap waar nodig nog toegespitst beleid en beleidsregels op de verschillende thema's/speerpunten uit het waterbeheersplan en heeft het waterschap een eigen verordening; De Keur en de legger. De Keur bevat gebods- en verbodsbepalingen met betrekking tot ingrepen die consequenties hebben voor de waterhuishouding en het waterbeheer. De legger geeft aan waar de waterstaatswerken liggen, aan welke afmetingen en eisen die moeten voldoen en wie onderhoudsplichtig is. Veelal is voor deze ingrepen een watervergunning van het waterschap benodigd. De Keur is onder andere te raadplegen via de site van het waterschap Brabantse Delta.

Het waterschap hanteert bij (nieuwe) ontwikkelingen het principe van waterneutraal bouwen, waarbij gestreefd wordt naar het behoud of herstel van de 'natuurlijke' waterhuishoudkundige situatie. Vanwege dit principe wordt bij uitbreiding van verhard oppervlak voor de omgang met hemelwater uitgegaan van de voorkeursvolgorde infiltreren, bergen, afvoeren. De technische eisen en uitgangspunten voor het ontwerp van watersystemen zijn opgenomen in de 'beleidsregel Afvoer hemelwater door toename en afkoppelen van verhard oppervlak, en de hydrologische uitgangspunten bij de keurregels voor afvoeren van hemelwater'.

Gemeentelijk beleid

Het verbreed GRP Dongen geeft het beleid van de gemeente Dongen weer op het gebied van rioleringszorg (afvalwater en hemelwater) en haar gemeentelijke zorgtaken ten aanzien van grondwater.

In het plan komt ook het stedelijke oppervlaktewater aan de orde, omdat hemelwater, grondwater en zelfs afvalwater relaties hebben met het oppervlaktewater. De zorgplichten zijn zodanig geformuleerd dat iedere gemeente een zekere mate van beleidsvrijheid houdt om een eigen invulling te kiezen voor de lokale situatie. Dit verbreed GRP Dongen geldt voor de periode 2016 tot 2020 en is vastgesteld in december 2015.

4.7.2 Toetsing

Huidige situatie 

Het projectgebied omvat het terrein naast de bestaande woning, gelegen aan Heuvel 20 in Dongen. Het gebied bestaat momenteel uit een onverharde tuin.

Bodem en grondwater

Omdat het projectgebied in de bebouwde kom van Dongen ligt, is het projectgebied op de Bodemkaart van Nederland niet gekarteerd. In de directe omgeving van de kern van Dongen zijn hoofdzakelijk zandgronden aanwezig. In de omgeving van de kern van Dongen zijn verschillende grondwatertrappen aanwezig. Deze zijn weergegeven figuur 4.3.

afbeelding "i_NL.IMRO.0766.OABP20190017-VG01_0015.png"

Figuur 4.3 Grondwaterstanden omgeving kern Dongen (Bron: Bodemkaart van Nederland, 2018)

Waterkwantiteit

Op alle watergangen en sloten die zijn opgenomen in de legger, is de keur van het waterschap van toepassing. Dit betekent voor de verschillende watergangen het volgende:

  • a. waterlopen categorie A: voor deze watergangen geldt dat het waterschap tot 5 m vanaf beide insteken van de watergang randvoorwaarden stelt aan de inrichting om onderhoud aan de watergang mogelijk te houden;
  • b. waterlopen categorie B: de eigenaren van gronden langs deze watergangen moeten de sloten eenmaal per jaar – in het najaar – schoonmaken. Het waterschap controleert of de sloten goed schoon zijn (= schouwen);
  • c. voor ingrepen die binnen 5 m vanaf de insteek van waterlopen categorie A plaatsvinden, dient een ontheffing van de keur te worden aangevraagd.

Dit geldt ook voor ingrepen in de waterlopen categorie B en overige watergangen en sloten, zoals het verleggen en dempen van watergangen en het aanbrengen van duikers in watergangen.

Op basis van bovenstaande afstanden kan gesteld worden dat in of nabij geen watergangen gelegen zijn.

Veiligheid en waterkeringen

Binnen en in de directe omgeving van de gemeente Dongen zijn geen waterkeringen gelegen. Het projectgebied is dan ook niet gelegen binnen de kern- of beschermingszone van een waterkering.

Afvalwaterketen en riolering

Het projectgebied is in de huidige situatie aangesloten op een gemengd rioolstelsel.

Toekomstige situatie 

Algemeen

De initiatiefnemer is voornemens om naast de bestaande woning aan Heuvel 20 te Dongen een nieuwe vrijstaande particuliere woning te realiseren.

Waterkwantiteit

Alle nieuwbouw- en herstructureringsprojecten binnen de gemeente Dongen worden in principe waterneutraal uitgevoerd, waarbij getracht wordt te voorkomen dat er negatieve effecten op het grond- en oppervlaktewater optreden. Hierbij wordt uitgegaan van een bui t=100 dat overeenkomt met een retentie van 78 mm. Verhard oppervlak wordt in principe niet aangesloten op de riolering. Het hemelwater wordt bij voorkeur bovengronds geborgen en vervolgens geïnfiltreerd.

De gemeente Dongen heeft strengere bergingseisen dan het waterschap Brabantse Delta. Deze eisen zijn gevisualiseerd in figuur 4.4.

afbeelding "i_NL.IMRO.0766.OABP20190017-VG01_0016.png"

Figuur 4.4 Visualisatie bergingseisen gemeente Dongen

(Bron: Gemeente Dongen)

Het projectgebied aan Heuvel 20 te Dongen is momenteel volledig onverhard. De nieuwbouw van de nieuwe woning heeft een oppervlak van 98 m2. Op basis van de bergingseisen van de gemeente Dongen is voor de nieuwbouw 7,6 m3 compensatie benodigd.

Tabel 4.1 Benodigde berging

Verharding   Oppervlak   Bergingseis   Benodigde berging  
Bebouwing   98 m2   78 mm   98 * 0,0078 = 7,6 m3  
       
    Totaal: 7,6 m3  

De benodigde berging moet in principe worden ingevuld binnen het projectgebied. In het projectgebied zelf zijn de mogelijkheden om open water aan te leggen beperkt. Er zijn diverse mogelijkheden om toch invulling te geven aan de compensatie-eis. Zo zouden bijvoorbeeld binnen het projectgebied infiltratiekratten gerealiseerd kunnen worden in de tuin en/of onder de oprit. De exacte uitwerking van deze benodigde waterberging en de vorm waarin dit toegepast wordt zal in overleg met de gemeente Dongen en indien nodig met het waterschap Brabantse Delta plaatsvinden.

Veiligheid en waterkeringen

De ontwikkeling is niet van invloed op de waterveiligheid in het projectgebied.

Watersysteemkwaliteit en ecologie

Ter voorkoming van diffuse verontreinigingen van water en bodem is het van belang om duurzame, niet-uitloogbare materialen te gebruiken, zowel gedurende de bouw- als de gebruiksfase. Daarom wordt zoveel mogelijk gebruik gemaakt van milieuvriendelijke bouwmaterialen en worden uitlogende bouwmaterialen, zoals lood, koper, zink en zacht PVC niet toegestaan.

Afvalwaterketen en riolering

Conform de Leidraad Riolering, vigerend waterschapsbeleid en het verbreed GRP Dongen is het voor nieuwbouw gewenst een gescheiden rioleringsstelsel aan te leggen zodat schoon hemelwater niet bij een rioolzuiveringsinstallatie terecht komt. Afvalwater wordt aangesloten op de bestaande gemeentelijke riolering. Voor hemelwater wordt de volgende voorkeursvolgorde aangehouden:

Op basis van het verbreed GRP Dongen geldt onderstaande voorkeursvolgorde met betrekking tot de omgang met hemelwater en ander afvalwater aan de bron:

  • a. het ontstaan van afvalwater wordt voorkomen of beperkt;
  • b. verontreiniging van hemelwater wordt voorkomen of beperkt;
  • c. afvalwaterstromen worden gescheiden gehouden, tenzij het niet-gescheiden houden geen nadelige gevolgen heeft voor een doelmatig beheer van afvalwater;
  • d. huishoudelijk afvalwater en daarmee vergelijkbaar afvalwater wordt ingezameld en naar een rioolwaterzuiveringsinstallatie getransporteerd;
  • e. ander afvalwater dan bedoeld onder d. (in de praktijk dus vooral hemelwater) wordt hergebruikt (zo nodig na zuivering aan de bron);
  • f. ander afvalwater dan bedoeld onder d. wordt lokaal in het milieu teruggebracht (zo nodig na zuivering aan de bron);
  • g. ander afvalwater dan bedoeld onder d. wordt als stedelijk afvalwater ingezameld en naar een rwzi getransporteerd.

Waterbeheer

Voor aanpassingen aan het bestaande watersysteem dient bij het waterschap vergunning te worden aangevraagd op grond van de 'Keur'. Dit geldt dus bijvoorbeeld voor het graven van nieuwe watergangen, het aanbrengen van een stuw of het afvoeren van hemelwater naar het oppervlaktewater. In de Keur is ook geregeld dat een beschermingszone voor watergangen en waterkeringen in acht dient te worden genomen. Dit betekent dat binnen de beschermingszone niet zonder ontheffing van het waterschap gebouwd, geplant of opgeslagen mag worden. De genoemde bepaling beoogt te voorkomen dat de stabiliteit, het profiel en/of de veiligheid wordt aangetast, de aan- of afvoer en/of berging van water wordt gehinderd dan wel het onderhoud wordt gehinderd. Ook voor het onderhoud gelden bepalingen uit de 'Keur'. Het onderhoud en de toestand van de (hoofd)watergangen worden tijdens de jaarlijkse schouw gecontroleerd en gehandhaafd

4.7.3 Conclusie

Ten gevolge van de planontwikkeling is sprake van een toename in verharding. Er wordt rekening gehouden met de bergingseis van de gemeente dongen voor verbouwing met toename in verharding. De exacte invulling van de benodigde waterberging wordt in een latere fase nader uitgewerkt in overleg met de gemeente Dongen en het waterschap. Op basis hiervan wordt verwacht dat de ontwikkeling geen negatieve gevolgen heeft voor het waterhuishoudkundige systeem ter plaatse.

4.8 Ecologie

4.8.1 Normstelling en beleid

Bij de voorbereiding van een ruimtelijk plan dient onderzocht te worden of de Wet natuurbescherming en het beleid van de provincie ten aanzien van het Natuurnetwerk Nederland (voorheen Ecologische Hoofdstructuur) de uitvoering van het plan niet in de weg staan.

Wet natuurbescherming

Met de Wnb zijn alle bepalingen met betrekking tot de bescherming van natuurgebieden en dier- en plantensoorten samengebracht in één wet. De Wnb implementeert diverse Europees-rechtelijke regelgeving, zoals de Vogelrichtlijn en de Habitatrichtlijn in de Nederlandse wetgeving.

Gebiedsbescherming

De Wnb kent diverse soorten natuurgebieden, te weten:

  • Natura-2000 gebieden;
  • Natuurnetwerk Nederland (NNN).

Natura-2000 gebieden

De Minister van Economische Zaken (EZ) wijst gebieden aan die deel uitmaken van het Europese netwerk van natuurgebieden: Natura 2000. Een dergelijk besluit bevat de instandhoudingsdoelstellingen voor de leefgebieden van vogelsoorten (Vogelrichtlijn) en de instandhoudingsdoelstellingen voor de natuurlijke habitats en habitats van soorten (Habitatrichtlijn).

Een bestemmingsplan dat afzonderlijk of in combinatie met andere plannen of projecten significante gevolgen kan hebben voor een Natura 2000-gebied, kan uitsluitend vastgesteld worden indien uit een passende beoordeling de zekerheid is verkregen dat het plan, onderscheidenlijk het project de natuurlijke kenmerken van het gebied niet zal aantasten. Indien deze zekerheid niet is verkregen, kan het plan worden vastgesteld, indien wordt voldaan aan de volgende drie voorwaarden:

  • alternatieve oplossingen zijn niet voor handen;
  • het plan is nodig om dwingende redenen van groot openbaar belang, met inbegrip van redenen van sociale of economische aard, en
  • de nodige compenserende maatregelen worden getroffen om te waarborgen dat de algehele samenhang van het Natura 2000-netwerk bewaard blijft.

De bescherming van deze gebieden heeft externe werking, zodat ook ingrepen die buiten deze gebieden plaatsvinden verstoring kunnen veroorzaken en moeten worden getoetst op het effect van de ingreep op soorten en habitats.

Natuurnetwerk Nederland (NNN)

Gebieden die deel uitmaken van het Natuurnetwerk Nederland (NNN) worden aangewezen in de provinciale verordening. Voor dit soort gebieden geldt het 'nee, tenzij' principe, wat inhoudt dat binnen deze gebieden in beginsel geen nieuwe ruimtelijke ontwikkelingen mogen plaatsvinden.

Soortenbescherming

In de Wnb wordt een onderscheid gemaakt tussen:

  • soorten die worden beschermd in de Vogelrichtlijn;
  • soorten die worden beschermd in de Habitatrichtlijn;
  • overige soorten.


De Wnb bevat onder andere verbodsbepalingen ten aanzien van het opzettelijk vernielen of beschadigen van nesten, eieren en rustplaatsen van vogels als bedoeld in artikel 1 van de Vogelrichtlijn. Gedeputeerde Staten (hierna: GS) kunnen hiervan ontheffing verlenen en bij verordening kunnen Provinciale Staten (hierna: PS) vrijstelling verlenen van dit verbod. De voorwaarden waaraan voldaan moet worden om ontheffing of vrijstelling te kunnen verlenen zijn opgenomen in de Wnb en vloeien direct voort uit de Vogelrichtlijn. Verder is het verboden in het wild levende dieren van soorten, genoemd in bijlage IV, onderdeel a, bij de Habitatrichtlijn, bijlage II bij het Verdrag van Bern of bijlage I bij het Verdrag van Bonn, in hun natuurlijk verspreidingsgebied opzettelijk te doden of te vangen of te verstoren. GS kunnen hiervan ontheffing verlenen en bij verordening kunnen PS vrijstelling verlenen van dit verbod. De gronden voor verlening van ontheffing of vrijstelling zijn opgenomen in de Wnb en vloeien direct voort uit de Habitatrichtlijn.

Ten slotte is een verbodsbepaling opgenomen voor overige soorten. Deze soorten zijn opgenomen in de bijlage onder de onderdelen A en B bij de Wnb. De provincie kan ontheffing verlenen van deze verboden. Verder kan bij provinciale verordening vrijstelling worden verleend van de verboden. De noodzaak tot ontheffing of vrijstelling kan hierbij ook verband houden met handelingen in het kader van de ruimtelijke inrichting of ontwikkeling van gebieden.

De Wnb is voor dit plan van belang, omdat bij de voorbereiding van een ruimtelijk plan moet worden onderzocht of deze wet de uitvoering van het plan niet in de weg staat.

Uitwerking Verordening uitvoering Wet natuurbescherming Noord-Brabant

In het kader van de ruimtelijke inrichting of ontwikkeling van gebieden, daaronder begrepen het daarop volgende gebruik van het ingerichte of ontwikkelde gebied, bestendig beheer of onderhoud in de landbouw of bosbouw, bestendig beheer of onderhoud aan vaarwegen, watergangen, waterkeringen, waterstaatswerken, oevers, vliegvelden, wegen, spoorwegen of bermen, of natuurbeheer, of bestendig beheer of onderhoud van de landschappelijke kwaliteiten van een bepaald gebied worden vrijstellingen verleend ten aanzien van de soorten genoemd in bijlage 3 bij deze verordening. Het betreft aardmuis, bastaardkikker, bosmuis, bruine kikker, dwergmuis, dwergspitsmuis, egel, gewone bosspitsmuis, gewone pad, haas, huisspitsmuis, kleine watersalamander, konijn, meerkikker, ondergrondse woelmuis, ree, rosse woelmuis, tweekleurige bosspitsmuis, veldmuis, vos, wild zwijn en woelrat.

4.8.2 Toetsing

Gebiedsbescherming

De eigenaar van het perceel aan Heuvel 20 te Dongen is voornemens om zijn perceel op te splitsen en hier een woning aan toe te voegen. Het projectgebied bestaat momenteel uit een tuin gesitueerd tussen de bestaande woning aan Heuvel 20 en de voetgangersstrook 'Aletta Jacobsstraat'. De locatie is gelegen op 7 kilometer ten opzichte van Natura 2000-gebied Langstraat, weergegeven in figuur 4.5. De ontwikkelingen en het gebruik leiden tot stikstofemissies. Dit leidt mogelijk tot een toename van stikstofdepositie op Natura 2000-gebied. In deze paragraaf is beschreven of dit plan mogelijk is binnen het kader van de Wet natuurbescherming.

afbeelding "i_NL.IMRO.0766.OABP20190017-VG01_0017.png"

Figuur 4.5  Ligging projectgebied (rode cirkel) ten opzichte van Natura 2000 (Bron: Rijksoverheid)

Met het programma AERIUS Calculator is een berekening uitgevoerd om de gevolgen voor de stikstofdepositie binnen Natura 2000 in beeld te brengen en te toetsen of de eventuele toename past binnen de eisen die gelden op grond van de Wet natuurbescherming. Een complete memo inclusief de berekening is opgenomen in bijlage 5.

Aanlegfase

De gegevens van de bouwperiode zijn gebaseerd op kencijfers en referentieprojecten. Er wordt uitgegaan van een periode van bouwrijp maken (1 week) en bouw en afbouw (5 weken). Het in te zetten materieel is weergegeven in tabel 4.2.

Tabel 4.2 Materieelinzet tijdens bouw

afbeelding "i_NL.IMRO.0766.OABP20190017-VG01_0018.png"

Naast materieelinzet is er sprake van een toename van de verkeersbewegingen. Er is uitgegaan van een worst-case scenario waarbij er sprake is van 50 zware verkeersbewegingen en 400 lichte verkeersbewegingen op jaarbasis. Deze verkeersbewegingen wikkelen in noordelijke richting af via Heuvel, Dunantstraat, Europaplein en Trappistenstraat naar de Middellaan. Ter hoogte van de rotonde gaat het verkeer op in het heersende verkeersbeeld. Dit is het geval op het moment dat het aan- en afrijdende verkeer zich door zijn snelheid en rij- en stopgedrag nog niet, dan wel niet meer onderscheidt van het overige verkeer dat zich op de betrokken weg bevindt. Op grond van jurisprudentie worden de gevolgen voor het milieu van het af- en aanrijdend verkeer niet meer aan het in werking zijn van de inrichting toegerekend wanneer dit verkeer kan worden geacht te zijn opgenomen in het heersende verkeersbeeld.

Gebruiksfase

De nieuwe bebouwing wordt gasloos, derhalve is er geen sprake van gebouwemissies. In de gebruiksfase is er enkel sprake van stikstofemissies als gevolg van een toename van het aantal verkeersbewegingen. Op basis van één vrijstaande woning in Dongen bedraagt deze toename maximaal 8,6 mvt/etmaal (kencijfer CROW 317). De verkeer wikkelt op gelijke wijze af als het bouwverkeer.

Resultaten

Uit berekeningen voor de aanleg- en gebruiksfase blijkt dat er geen sprake is van stikstofdeposities op Natura 2000 die hoger zijn dan 0,00 mol/ha/jr derhalve is er geen vergunning nodig in het kader van de Wet natuurbescherming. De AERIUS-berekeningen zijn als PDF-bijlage toegevoegd aan de memo.

Soortenbescherming

De beoogde woningbouwontwikkeling zou kunnen samen gaan met effecten op beschermde planten- en diersoorten. Op grond hiervan is een verkennend veldonderzoek uitgevoerd naar het voorkomen van beschermde soorten. Dit onderzoek is opgenomen in bijlage 6.

In verband met de aanwezigheid van algemene broedvogels is het van belang om werkzaamheden buiten het broedseizoen te starten en/of te werken op een manier dat vogels niet tot broeden komen (vogelverschrikkers gebruiken). Het voorkomen van en effecten op vleermuizen en vogels met vaste rust en verblijfplaatsen kan worden uitgesloten. Mogelijk vliegen en foerageren er vleermuizen. Gedurende en na realisatie van de plannen kunnen deze soorten er blijven vliegen en foerageren. Er zijn daarnaast

mogelijk algemene nationaal beschermde zoogdieren en amfibieën aanwezig. Voor deze algemene soorten bestaat een algemene vrijstelling in provincie Noord-Brabant. Het voorkomen van overige beschermde soorten wordt uitgesloten.

Op grond van de bovenstaande analyse worden effecten op beschermde planten- en diersoorten uitgesloten; de plannen aan de Heuvel 20 te Dongen zijn niet in strijd met het gestelde binnen de Wet natuurbescherming.

4.8.3 Conclusie

De voorgenomen ontwikkeling leidt niet tot negatieve effecten op beschermde natuurgebieden of beschermde soorten. Het aspect ecologie vormt dan ook geen belemmering voor de uitvoering van het project.

4.9 Wegverkeerslawaai

4.9.1 Normstelling en beleid

Langs alle wegen - met uitzondering van 30 km/u-wegen en woonerven - bevinden zich op grond van de Wet geluidhinder (Wgh) geluidzones waarbinnen de geluidhinder vanwege de weg moet worden getoetst. Akoestisch onderzoek is volgens de Wgh noodzakelijk wanneer nieuwe geluidgevoelige functies worden mogelijk gemaakt binnen de geluidzone van gezoneerde wegen.

De nieuwe woning is een geluidgevoelige functie maar niet gelegen binnen de geluidzone van gezoneerde wegen. Op basis van jurisprudentie dient in het kader van een goede ruimtelijke ordening aannemelijk te worden gemaakt dat ook sprake is van een aanvaardbaar geluidniveau wanneer de ontwikkeling is gesitueerd nabij niet gezoneerde wegen (30 km/u wegen). De geluidbelasting ten gevolge van het verkeer op de Heuvel is voor dit plan berekend in het kader van een goede ruimtelijke ordening.

4.9.2 Toetsing en conclusie

Het perceel aan Heuvel 20 te Dongen ligt in een woonwijk waarbij een maximum snelheid van 30 km per uur van toepassing is. Door de verkeerspaaltjes aan het einde van de doodlopende straat (oostzijde) wordt een afscheiding gevormd tussen Heuvel en het Heuvelplein. Heuvel is daardoor vrijwel een verkeersluwe straat. Vanuit het oogpunt van een goede ruimtelijke ordening kan dus worden geconcludeerd dat er sprake is van een acceptabel akoestisch woon- en leefklimaat.

4.10 Luchtkwaliteit

4.10.1 Normstelling en beleid

In het kader van een goede ruimtelijke ordening wordt bij het opstellen van een ruimtelijk plan uit het oogpunt van de bescherming van de gezondheid van de mens rekening gehouden met de luchtkwaliteit. Het toetsingskader voor luchtkwaliteit wordt gevormd door hoofdstuk 5, titel 5.2 van de Wet milieubeheer. Dit onderdeel van de Wet milieubeheer (Wm) bevat grenswaarden voor zwaveldioxide, stikstofdioxide en stikstofoxiden, fijn stof, lood, koolmonoxide en benzeen. Hierbij zijn in de ruimtelijke ordeningspraktijk langs wegen vooral de grenswaarden voor stikstofdioxide (jaargemiddelde) en fijn stof (jaar- en daggemiddelde) van belang. De grenswaarden van de laatstgenoemde stoffen zijn in tabel 4.1 weergegeven.

Tabel 4.1. Grenswaarden maatgevende stoffen Wm

afbeelding "i_NL.IMRO.0766.OABP20190017-VG01_0019.png"

Op grond van artikel 5.16 van de Wm kunnen bestuursorganen bevoegdheden die gevolgen kunnen hebben voor de luchtkwaliteit onder andere uitoefenen indien de bevoegdheden/ontwikkelingen niet leiden tot een overschrijding van de grenswaarden of de bevoegdheden/ontwikkelingen niet in betekenende mate bijdragen aan de concentratie in de buitenlucht.

4.10.2 Toetsing

De beoogde ontwikkeling betreft de toevoeging van één woning. Een dergelijke ontwikkeling valt onder het besluit niet in betekenende mate onder de categorie woningbouw tot 1.500 woningen aan één ontsluitingsweg. Dit betekent dat de ontwikkeling niet in betekenende mate bijdraagt aan de luchtkwaliteit ter plaatse en dat nader onderzoek niet noodzakelijk wordt geacht.

In het kader van een goede ruimtelijke ordening is een indicatie van de luchtkwaliteit ter plaatse van het projectgebied gegeven. Dit is gedaan aan de hand van de NSL-monitoringstool 2016 die bij het Nationaal Samenwerkingsprogramma Luchtkwaliteit hoort. De dichtstbijzijnde maatgevende weg betreft de Rijensestraatweg. Uit de NSL-monitoringstool blijkt dat in 2015 de jaargemiddelde concentraties stikstofdioxide en fijn stof langs deze weg ruimschoots onder de grenswaarden lagen.

Omdat direct langs deze weg aan de grenswaarden wordt voldaan, zal dit ook ter plaatse van het projectgebied het geval zijn. Concentraties luchtverontreinigende stoffen nemen immers af naarmate een locatie verder van de weg ligt. Hierdoor is er ter plaatse van het projectgebied sprake van een aanvaardbaar woon- en leefklimaat.

4.10.3 Conclusie

Het aspect luchtkwaliteit staat de beoogde ontwikkeling aan Heuvel 20 te Dongen niet in de weg.

Hoofdstuk 5 Uitvoerbaarheid

5.1 Financiële aspecten

5.1.1 Wet ruimtelijke ordening en grondexploitatie

In de Wet ruimtelijke ordening is de grondexploitatiewet opgenomen. Deze afdeling regelt verplicht kostenverhaal door de gemeente. Doel hiervan is om bij de ontwikkeling van bouwlocaties een eerlijke verdeling van kosten en opbrengsten voor publieke voorzieningen af te dwingen. De gemeente legt dit kostenverhaal vast in een exploitatieplan. De kosten worden verhaald via de omgevingsvergunning voor het bouwen. Het exploitatieplan is in feite een publiekrechtelijke terugvaloptie; privaatrechtelijk kan meer geregeld worden.

Kostenverhaal dient te worden verzekerd bij onder andere een bestemmingsplan dat rechtstreeks bouwplannen mogelijk maakt (niet via wijzigingsbevoegdheid).

Een exploitatieplan is niet vereist indien het kostenverhaal anderszins is verzekerd (bijvoorbeeld door het sluiten van overeenkomsten van grondexploitatie met alle eigenaren met exploitatiegebied, waar bouwmogelijkheden gerealiseerd kunnen worden of volledig grondeigendom).

In een ruimtelijke onderbouwing is sprake van kostenverhaal (6.2.3 tot en met 6.2.5 Bro) als een bouwplan (6.2.1 Bro) mogelijk wordt gemaakt. Welke kosten verhaalbaar zijn (kostensoortenlijst) is ook in het Bro geregeld (artikel 6.2.3 tot en met 6.2.5).

Een exploitatieplan moet gelijktijdig met het vaststellen van het daarbij behorende ruimtelijke plan worden vastgesteld. Dit betekent dat het ontwerp van een exploitatieplan gelijktijdig met een ontwerp van de omgevingsvergunning voor afwijken van het bestemmingsplan ter inzage moet worden gelegd.

Nieuwe ontwikkeling

In de voorliggende ruimtelijke onderbouwing wordt een ontwikkeling voorzien die wordt aangemerkt als bouwplan als bedoeld in artikel 6.2.1 van het Bro.

Voor de beoogde ontwikkeling dient de gemeente met de grondeigenaar een zogeheten "anterieure" overeenkomst af te sluiten. Daarmee wordt verzekerd dat kosten van de kostensoortenlijst uit het Bro en alle projectgebonden kosten verhaald worden op de initiatiefnemers. Voor het overige worden geen nieuwe ruimtelijke ontwikkelingen rechtstreeks mogelijk gemaakt. Dit betekent dat voor dit bestemmingsplan geen exploitatieplan hoeft te worden vastgesteld.

5.1.2 Financiële uitvoerbaarheid

Voor de ontwikkeling die thans rechtstreeks juridisch-planologisch mogelijk worden gemaakt hebben de initiatiefnemers gegevens voorgelegd aan de gemeente waaruit blijkt dat deze de investeringen financieel kan dragen. Gelet op het vertrouwelijke karakter zijn de financiële gegevens niet in deze paragraaf opgenomen. De gemeente heeft inzicht gehad in de financiële gegevens en is tot de conclusie gekomen dat de ontwikkeling financieel uitvoerbaar is.

De financiële uitvoerbaarheid van deze ontwikkeling is met het oog op het voorgaande afdoende gewaarborgd.

5.2 Maatschappelijke aspecten

5.2.1 Procedure

Voor het besluit van de omgevingsvergunning is de uniforme voorbereidingsprocedure gevolgd als bedoeld in hoofdstuk 3.4 van de Algemene wet bestuursrecht. Belanghebbenden en belangstellenden zijn via deze wettelijke procedure geïnformeerd en hebben daarbij de mogelijkheid krijgen om hun zienswijzen over het plan kenbaar te maken. Het ontwerpbesluit omgevingsvergunning is gepubliceerd op 12 december 2019, waarna de omgevingsvergunning voor een periode van zes weken ter inzage heeft gelegen (van 13 december 2019 t/m 23 januari 2020).

5.2.2 Zienswijze en verwerking

Tegen de omgevingsvergunning is op 21 januari 2020 een zienswijze ingediend. De zienswijze is ingediend binnen de daartoe gestelde termijn en daarmee ontvankelijk. De zienswijze is gericht op drie aspecten, namelijk:

  • 1. Parkeeroverlast;
  • 2. Hoogte van de nieuwbouw;
  • 3. Aantasting van het groene karakter van de omgeving.

In een schriftelijk advies heeft de gemeente haar reactie gegeven op de ingediende zienswijze. De ruimtelijke onderbouwing is vervolgens op een aantal aspecten aangepast. Wat betreft het parkeren wordt gesteld dat er geen alleenrecht op het gebruik van de parkeergelegenheid in het openbaar toegankelijk gebied bestaat. Het kan dus voorkomen dat, op het moment dat de parkeergelegenheid bezet is, uitgeweken moet worden naar omliggende straten. Bovendien hebben de adressen Heuvel 21, 24 en 26 parkeergelegenheid op eigen terrein. Het bezoekersaandeel voor parkeren, zoals opgenomen in de parkeernota bedraagt 0,3 parkeerplaats. Voor bezoekers parkeren is in de straat en de directe omgeving afdoende parkeergelegenheid. Bovendien is het aan de Heuvel toegestaan om op de straat te parkeren waarbij het verkeer niet gehinderd wordt of mag worden. Zowel paragraaf 4.1 en de inrichtingstekening ten behoeve van de omgevingsvergunning zijn hierop aangepast. Hieruit wordt duidelijk wat de benodigde ruimte voor de inrit is.

Wat betreft de hoogte van de nieuwbouw zijn een aantal aanpassingen doorgevoerd met betrekking tot de onderbouwing en de ontwerptekeningen (bijlage 1 en paragraaf 2.2). De toekomstige woning heeft 3 bouwlagen en kent een eenzijdig oplopende kap. De goothoogte van de woning ligt op 6,54 meter en de maximale bouwhoogte op 10 meter. Inherent aan het bouwen van een woning is er sprake van raampartijen. Zo ook hier. De grootte van de ramen maken niet of er meer of minder zicht naar buiten ontstaat. Immers, ook door kleine ramen is er zicht naar buiten toe. Bovendien bevinden zich achter de ramen slaapvertrekken. Gelet hierop en gelet op de afstand tot de woningen aan de overzijde, is er volgens de gemeente Dongen geen sprake van een onaanvaardbare situatie. Bewoners van Heuvel 17 en Heuvel 19, geheel zijdelings gelegen van de projectlocatie, hebben geen zienswijze ingediend waardoor er vanuit gegaan kan worden dat zij zich met de plannen kunnen verenigen.

Wat betreft groen staat de eigenaar van de gronden in zowel de bestaande als de toekomstige situatie vrij om de beplanting te verwijderen. Aan de inrichting van privétuinen zijn geen rechten te ontlenen. In de toekomstige situatie is nog niet bekend welke bomen en hagen behouden blijven. Voor het verwijderen van bomen of hagen op het perceel is geen omgevingsvergunning noodzakelijk.